Wednesday, February 5, 2025–11:30 a.m.
-Diane Wagner, Rome News-Tribune-
This story is possible because of a news-sharing agreement with the Rome News-Tribune. More information can be found at northwestgeorgianews.com

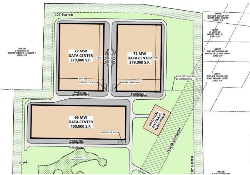
Plans for another data center, on about 178 acres between Plainville Road and Ga. 53, will go before the Rome Floyd Planning Commission on Thursday.
Atlas Development Inc. is seeking a rezoning from Suburban Residential to Heavy Industrial use. The proposed Dixon Data Center campus would include high security server buildings with advanced climate control, operational support facilities, an electrical substation and other utility infrastructure and on-site water cooling systems.
The property is across from the Lowe’s Distribution Center but there are single-family homes and farmland nearby and residents have expressed concerns. An environmental report also will be required, due to the presence of Woodward Creek and associated wetlands.
Planning staff is recommending approval of the rezoning with conditions.
The planning commission meets at 2:30 p.m. in Rome City Hall, 601 Broad St. It holds public hearings before voting on recommendations to the city and county commissions.
The citizen board also will consider plans for a Christian retreat on about 30 acres off Smith Road near Manning Lake.
A special use permit is required for the proposed retreat for retirees, which would include 94 cabins, 50 modular homes for workers and a community center with a gym and cafeteria.
It’s part of a 150-acre property made up of several parcels, all zoned for Suburban Residential development, and a separate subdivision also will be constructed on one of the tracts. Plans are for the applicant to install an extension to the public sewer system at their own expense.
The adjoining property owner is opposed to the permit on the grounds that it is a commercial venture in a rural residential area. Smith Road is narrow and winding, and the letter to the planning department notes concerns about delivery vehicles, along with the change to the character of the neighborhood.
Planning staff is recommending the modular homes be considered separately from the retreat and the fire marshal has said fire protection and fire department egress also must be addressed in the plans.
Also on the agenda:
*The owner of 4.5 undeveloped acres stretching along Garden Lakes Parkway west of Fox Croft Road is seeking Suburban Residential zoning. The property is currently zoned for multi-family development.
Plans are to build 9 or 10 single-family homes on the parcel, at the rate of three a year.
*Equipment Outlet at 3297 Martha Berry Highway is planning to move a mile and a half north to the former Lavender Mountain Hardware space. They’re seeking a special use permit to allow tractor and farm equipment sales at the 4065 Martha Berry Highway site.
The company received an SUP for their current location last year but wants to move to the larger tract.
* The owner of the lot at 707 E. 17th St. in Rome is seeking a special use permit to build a duplex. The property is zoned for Suburban Residential use.




